건너뛰기 메뉴



기타행사

  1. [화성예술지원] 용하현 개인전 <사라지다; 살아지다 展> ,장소:엄미술관,기간:2023년 11월 7일~2023년 11월 25일

【전 시】[화성예술지원] 용하현 개인전 <사라지다; 살아지다 展>

장소
엄미술관
기간
2023년 11월 7일 ~ 2023년 11월 25일
요일
화, 수, 목, 금, 토
공연시간
10:00~17:00
티켓정보
예약 없이 현장 관람 (입장료 5,000원)
관람등급
전연령
문의
031-222-9188

화성시·화성시문화재단에서는 <2023 화성 예술활동 지원> 사업을 통해

화성시 관내 곳곳에서 54개의 새롭고 다양한 예술 프로젝트를 선보입니다. 

화성을 대표하는 예술인이 직접 만들어나가는 공연, 전시, 문학작품을 지금 바로 만나보세요!

*화성시 지원예산: 총 3억 8천만원 

용하현 개인전 <사라지다; 살아지다 >


변화되고 사라지는 공간의 기억과 흐름을 표현하다

용하현 개인전 <사라지다; 살아지다 展>은 화성 곳곳의 풍경을 작가만의 시선으로 담아내어 전시장 공간을 자연으로 확장시키는 전시이다. 

- 전 시 명 : 용하현 개인전 <살아지다, 사라지다 展>

- 작 가 명 : 용하현

- 전시기간 : 2023. 11. 7.(화)~11. 25.(토)

- 관람시간: 10:00~17:00 *월 휴관

- 전시장소: 엄미술관 (경기도 화성시 봉담읍 오궁길 37)

- 관람정보: 예약 없이 현장 관람 (입장료: 5,000원)


화성예술지원 화성시문화재단
사라지다; 살아지다 용하현 개인전
엄미술관 2023.11.7.-11.25.
경기도 화성시 봉담읍 오궁길 37
주최 화성시 화성시문화재단
화성 예술활동 지원 전시
주관 용하현, 엄미술관 


용하현 개인전

 

사라지다;살아지다

 

2023.11.07. ~ 11.25

경기도 화성시 봉담읍 오궁길 37, 엄미술관

 

변화되고 사라지는 공간의 기억과 흐름을 표현한다.

 

작가 본인의 거주지인 화성시는 개발로 인해 최근 농촌 마을에서 신도시의 건설과 공장지대로 변화하면서 자연의 들판과 농경지대가 사라져가는 양상을 보인다발전된 도시로 인구가 이동하고 산업단지가 들어서면서 조용하고 한적한 시골마을에는 농경지의 모습이 아닌 공장과 창고 컨테이너들이 주를 이루게 되었다.

공장 부지 한편에는 잡초가 무성하게 자라고 있는 버려져있는 폐가에 사람이 살던 흔적들과 버려져 있는 물건들의 모습이 변화되고 사라지는 공간을 보여준다.

 

서쪽으로는 서해의 간척 사업으로 인해 바다였던 곳이 섬이 되고또 육지가 되면서 생태계와 주민들의 생활상에 영향을 끼치게 되었다.

바닷물이 들어오며 배들이 떠있던 포구는 더 이상 바닷물이 들어오지 않고들판으로 변해 어촌마을의 풍경이 아니게 되었다어촌계 마을 사람들의 생활 터전은 사라지고어시장은 마을에 남은 주민들이 겨우 명맥만 이어나가고 있다.

 

변화된 자연과 도시의 과거현재미래의 모습을 유리의 투명성을 이용하여 중첩시켜 보여준다.

이곳에 살아가는 우리는 변화된 모습과 역사를 기억하고 느끼고 있다.

작업을 통해 그것들을 기록하며무분별한 도시 개발로 인해 사라져가는 자연과 이곳에 남아 계속 살아가게 될 우리의 모습을 담아내려 한다.


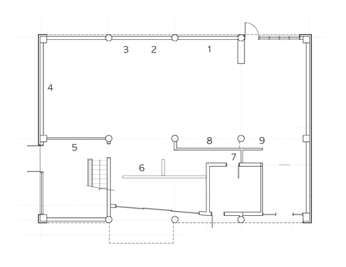
전시장 작품 배치도/본문참조


1. 바다, 72.7x50cm(10ea), 장지에 채색유리 가마 소성, 2023

2. 잔상, 53x45.5cm, 장지에 채색유리에 새김, 2023

3. 잔상, 53x45.5cm, 장지에 채색유리에 새김, 2023

4. 사라집니다가변설치유리 가마 소성디지털 프린팅, 2023

5. 풀내음, 22x60cm(2ea), 장지에 채색유리 가마 소성, 2023

6. 사라집니다, 59x42cm, 30.2x8.4cm, 유리 가마 소성, 2023

7. , 20x20cm, 장지에 채색연필, 2022

8. 그날의 기억, 115x45cm, 장지에 채색, 2023

9. 사라집니다, 53x34cm, 유리 가마 소성디지털 프린팅, 2023


용하현 작가 인스타그램 @yong_ha_a

  1. 용하현_전시 포스터.jpg   [ Size : 154.49KB, Down : 129 ] 미리보기 다운로드
    용하현_전시 포스터
  2. 용하현_전시 포스터.jpg   [ Size : 154.49KB, Down : 510 ] 미리보기 다운로드
    용하현_전시 포스터
  3. 전시장 작품 배치도.png   [ Size : 21.41KB, Down : 481 ] 미리보기 다운로드
    전시장 작품 배치도

목록보기